Rue des Jeûneurs
Localisation
Paris
Maîtrise d’Ouvrage
OREIMA
Équipe de maîtrise d’œuvre
Ateliers 2/3/4/ (Conception architecture et paysage + DET) – SATO (Structure – Fluides) – Eckea (Acoustique) – GVi (économiste) – G-ON (AMO Environnement) - E-GET
Nature du projet
Lieux d'activités
Programme
Réhabilitation d’un ensemble immobilier à usage d’enseignement et de bureaux
Mission
Architecte
Statut
Chantier
Surface
5720m2
Calendrier
Études : 2022-2023
Chantier : démarrage en 2025
Livraison : 2027
Crédits
Ateliers 2/3/4/ (perspectives et documents graphiques) - DZ (photos de chantier)
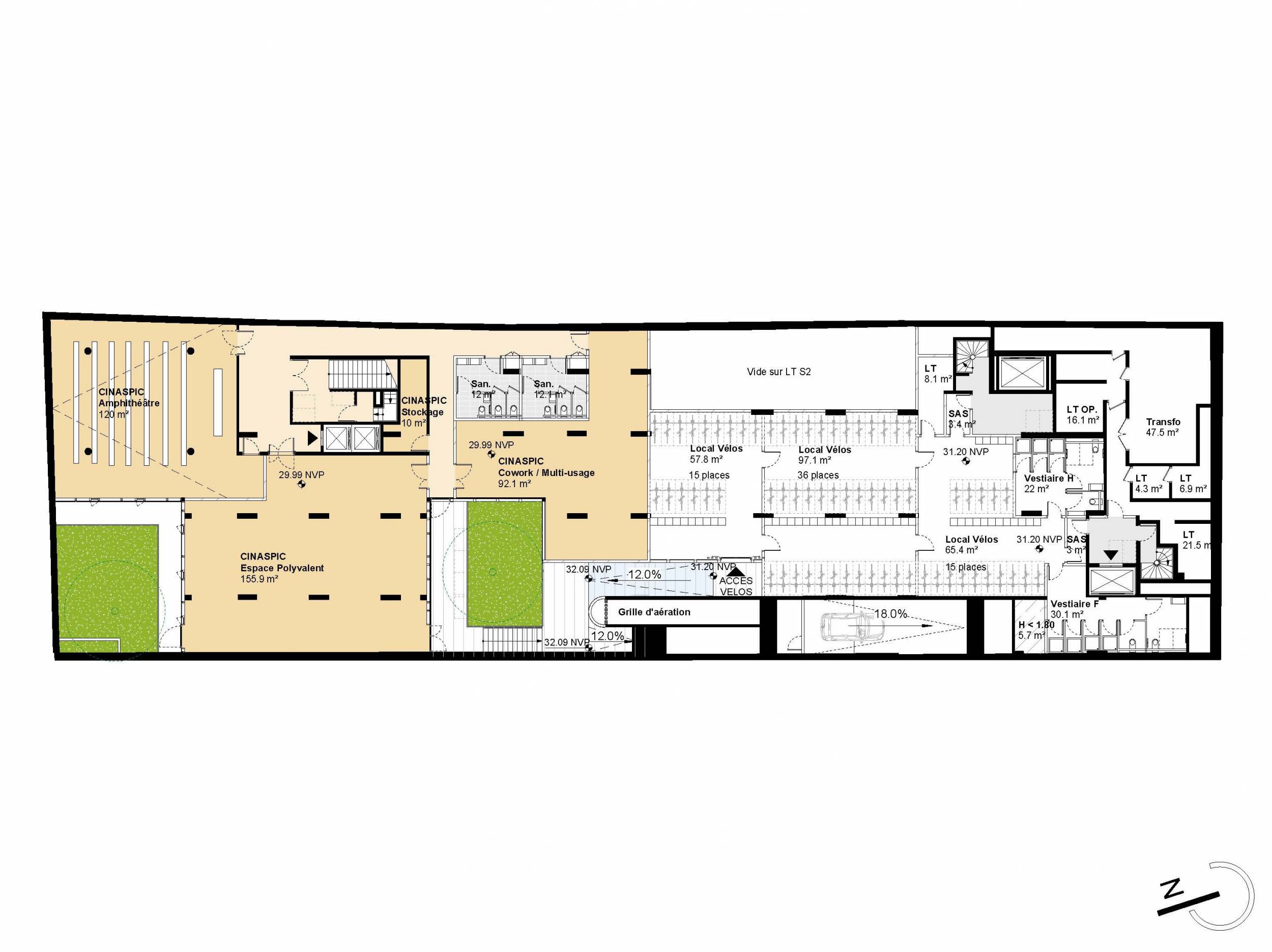
Le projet porte sur la réhabilitation d’un ensemble immobilier à usage d’enseignement (Cinaspic) et de bureaux. Cet ensemble est composé de deux corps de bâtiment.
Il est constitué par la mise en connexion de deux bâtiments en superstructure : un bâtiment « rue », au 40, Rue des Jeuneurs et un bâtiment « cour », construit dans les années 1994 en coeur d’îlot. En infrastructure, l’ensemble immobilier est composé de quatre niveaux de sous-sol, accessibles par une rampe de parking depuis la rue des Jeuneurs.
Le projet prévoit la restructuration des niveaux existants, avec :
• La mise à neuf des éléments de second œuvre dans un objectif de qualité environnementale et sa mise aux normes,
• Le réaménagement des accès et des sous-sols par la diminution des places de parking voitures au profit de surfaces créées (vélos, surfaces polyvalentes) autour d’un nouveau patio planté,
• Le réaménagement de la cour principale en coeur d’ilot avec création d’un pavillon d’accueil,
• La création de nombreuses terrasses étagées et connectées, en forme de « jardins suspendus »,
• Le renforcement de la place du végétal.
Il offre une morphologie de bâtiment simplifiée par la restructuration de ses volumes qui vise à :
• Connecter le bâtiment avec la ville
• Clarifier les usages
• Élever les terrasses et la végétation avec des jardins-suspendus.
Ainsi, les espaces extérieurs sont requalifiés, que ce soit des zones d’agréments de la vie collective, ou des zones de terrasses-jardins suspendues accessibles à tous. De nouvelles percées visuelles sont également cherchées en partie haute, depuis la cour du Rez-de-Chaussée, pour rompre avec la sensation d’enfermement qui prévaut actuellement. Enfin, un lien entre l’intérieur et l’extérieur rappelle les passages couverts parisiens : la cour devient une petite placette, parvis ou agora, préalable au lieu d’enseignement.











